6608 58th Ave, Innisfail
”The Winston II Triple”
Address
6608 58th Ave, Innisfail
Description
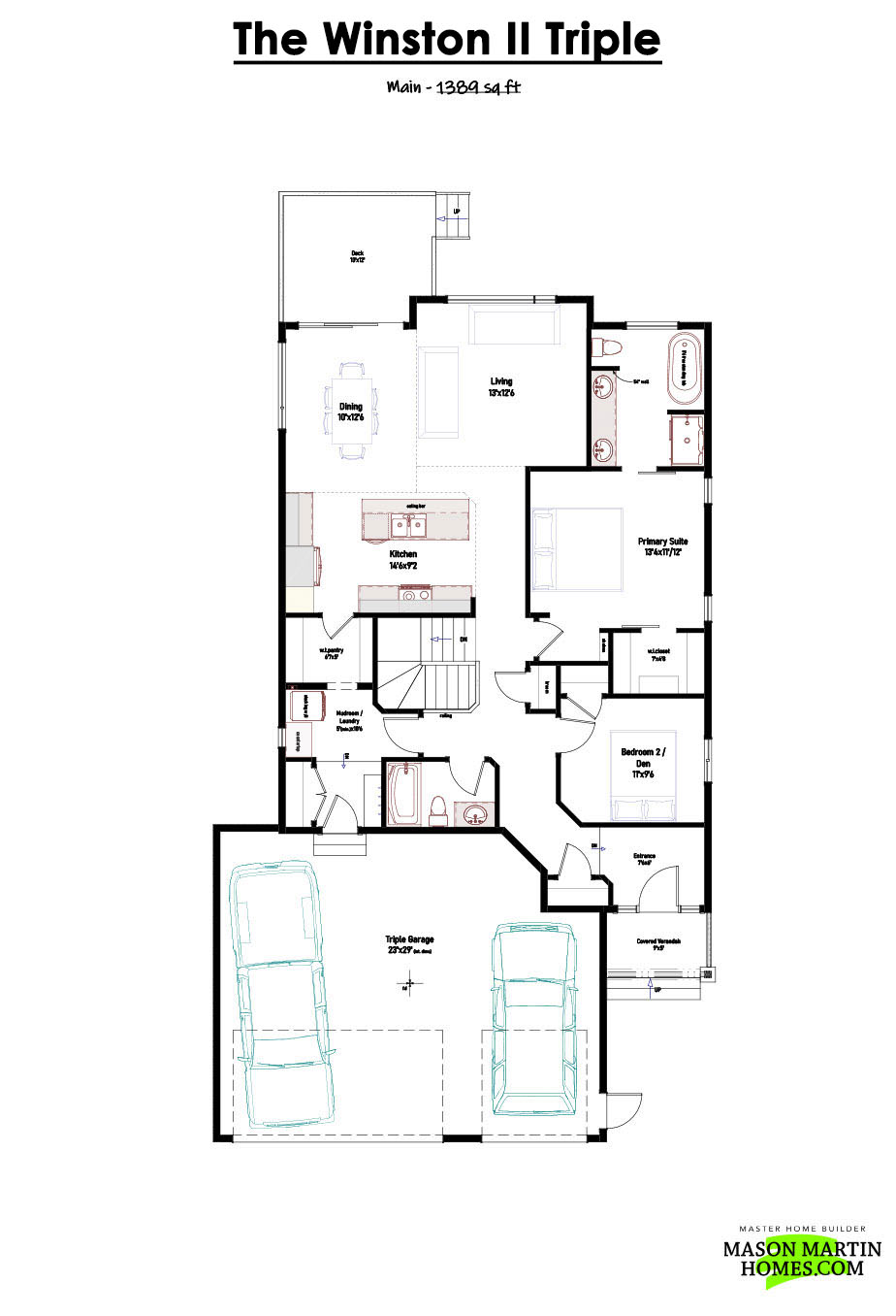
This Executive Bungalow floorplan has been designed by Mason Martin Homes featuring 2 bedrooms & 2 baths. A Great room that connects with the Kitchen & Dinning area making this an inviting social area. The roomy Front Entrance Greets you with a feature wall & views of the open spindle railing on a staircase to the lower level. The Chef’s kitchen has a Gas Stove, Professional Hood Vent with removable grates for cleaning, 8 ft. working island with eating bar, Fridge with Ice maker & water on the door. Quartz countertops through-out, walk-through mud room with laundry that leads into butler’s pantry with a Quartz appliance counter & MDF shelving on one side and wire shelving on the other.
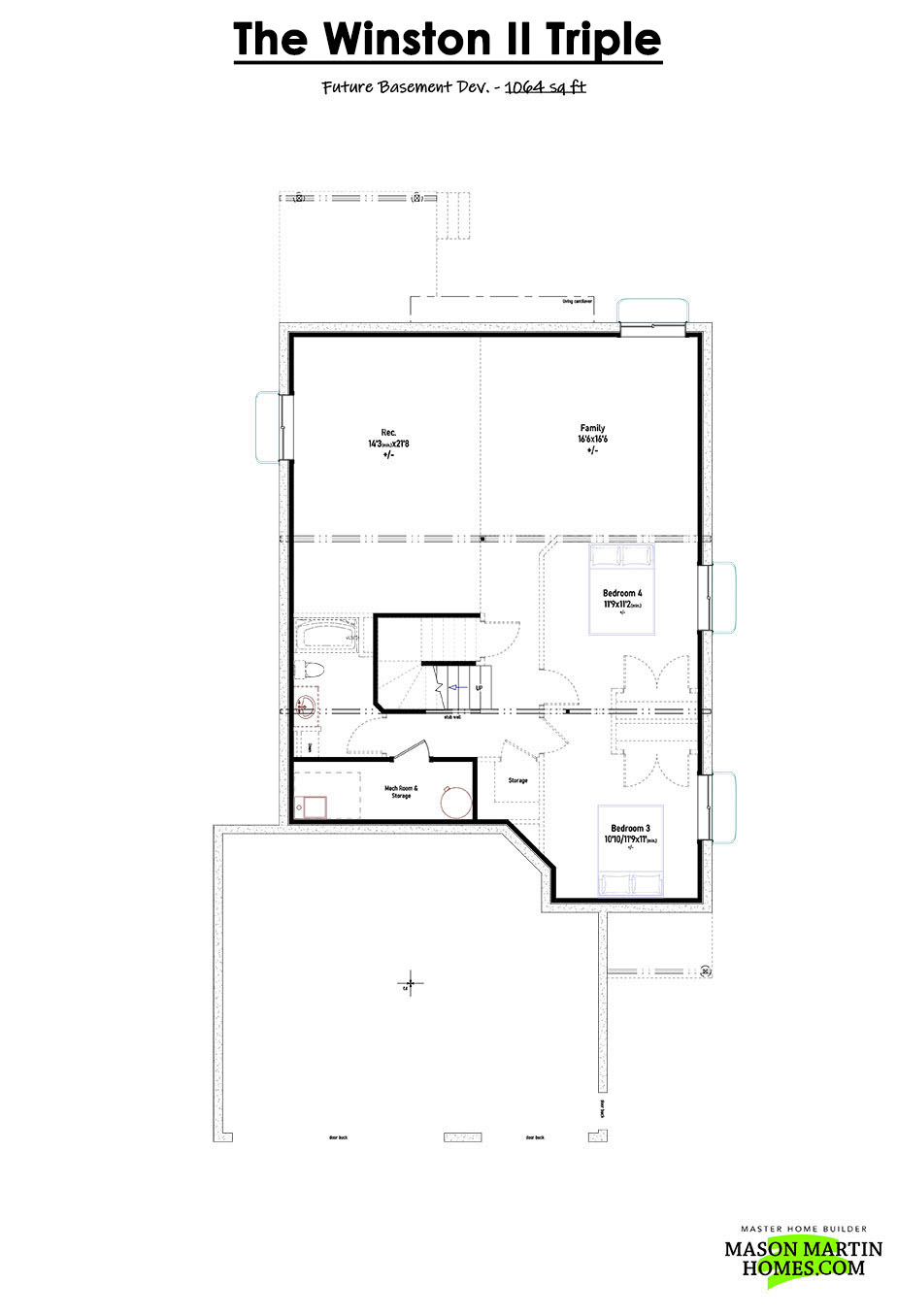
The Living Room features a decorative feature wall with a modern electric fireplace with T.V. above and view from the living room is outstanding. The spindled staircase leads you downstairs to a lower level featuring 9ft basement that can be personalized to your needs.
The Master Bedroom & Ensuite presents a stand-alone tub, 48” shower with his & hers sinks. Main floor laundry room. This Home is in the Stylish Community of Hazelwood, right beside Alberta’s Best 27 Holes of Championship Golf, an ISki Hill and walking paths around Dodds Lake.
This home is near shopping, restaurants, schools, public library, fitness facilities, and so much more. Truly a great place to call home while providing a Great Lifetime Investment.

Floor Plans
Main Floor

Basement Floor




